3 Zimmer 80,45 m² Dachgeschoss in Hamburg zur Miete. Ausstattung: Balkon, Einbauküche, Fliesenboden, etc.
Startseite » Immobilien » Moderne Maisonette-Wohnung mit West-Balkon!
Dieses Objekt ist zur Zeit leider nicht verfügbar.
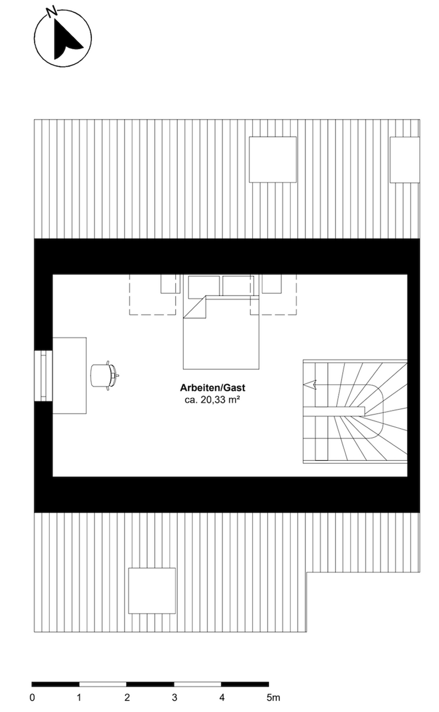
Die zu vermietende Wohnung befindet sich im 1. Obergeschoss sowie Dachgeschoss eines im Jahr 2021 in zweiter Reihe erbauten Mehrfamilienhauses mit insgesamt nur 4 Wohneinheiten. Gemäß Wohnflächenberechnung beträgt die Wohnfläche ca. 80,45 m². Diese verteilet sich auf den Eingangsbereich, das Schlafzimmer, das Badezimmer, eine kleine Abstellkammer sowie das großzügige Wohn-Koch-Esszimmer mit Austrittsmöglichkeit auf den Balkon mit West-Ausrichtung. Den offenen Spitzbodenbereich erreichen Sie über eine Treppe in der Wohnung, welcher als Arbeits- oder Gästezimmer genutzt werden kann.
Die moderne Einbauküche verfügt über Ober- und Unterschränke, eine Spüle, einen Herd mit Ofen, eine Dunstabzugshaube sowie eine Kühl-Gefrierkombination. Der Platz für eine Geschirrspülmaschine ist vorhanden.
Das zeitlos geflieste Badezimmer verfügt über eine Badewanne mit Duschmöglichkeit sowie ein Fenster. Außerdem befindet sich hier auch der Waschmaschinenanschluss.
Die Wohnung ist mit einer Fußbodenheizung ausgestattet, die raumweise regulierbar ist.
Zu der Wohnung gehört zusätzlich ein großer Kellerabstellraum. Ein Fahrradkeller kann gemeinschaftlich genutzt werden.
Die Bilder stammen aus einer baugleichen Wohnung im selben Gebäude und dienen der Veranschaulichung. Zum Schutz der Privatsphäre der aktuellen Mieter werden keine Fotos der angebotenen Wohnung veröffentlicht.
Es wird ein Staffelmietvertrag mit einer Erhöhung von 20 € pro Jahr und ein Kündigungsausschluss von 12 Monaten vereinbart. Die Kaution beträgt 3 Nettokaltmieten, demnach 4.200 €.
Wir weisen höflich darauf hin, dass alle hier veröffentlichten Angaben und Informationen auf den uns vom Eigentümer übermittelten Unterlagen und Daten basieren. Für die Richtigkeit und Vollständigkeit können wir keine Haftung übernehmen. Eine Zwischenvermietung bleibt vorbehalten.
Die Wohnung befindet sich in zweiter Reihe und damit in einer ruhigen, grünen Wohnumgebung im Hamburger Stadtteil Rahlstedt.
Die Anbindung an den öffentlichen Nahverkehr ist sehr gut: In unmittelbarer Nähe der Wohnung befinden sich mehrere Bushaltestellen. Die nächstgelegene Bushaltestelle "Gerstenwiese", ist nur wenige Gehminuten entfernt und wird unter anderem von der Buslinie 24 angefahren. Diese Linie bietet eine schnelle Verbindung zur S- und RB-Bahn-Station Rahlstedt sowie zur U-Bahn-Station Meiendorfer Weg.
In der näheren Umgebung der Wohnung finden sich zahlreiche Einkaufsmöglichkeiten. Supermärkte, Apotheken, Bäckereien und diverse kleine Geschäfte sind fußläufig erreichbar. Größere Einkaufszentren und Einzelhandelsgeschäfte befinden sich im Rahlstedter Zentrum, das mit dem Bus oder Fahrrad in wenigen Minuten erreichbar ist.
Für Naturliebhaber und Sportbegeisterte bietet das nahegelegene Naturschutzgebiet Höltigbaum vielfältige Möglichkeiten zur Erholung und Bewegung im Grünen. Auch der Volksdorfer Wald ist nur eine kurze Fahrt entfernt und lädt zu Wanderungen und Erkundungstouren ein.
Wenn Sie die Immobilien-Karte anzeigen, übertragen Sie Daten an Google Maps (Datenschutzerklärung).
